Търсене на Продукт / Фирма
Търси по ключова дума, продукт или фирма
-
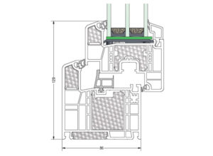
Rehau GENEO PHZ
-

Описание:
Подобрение на GENEO® сертифицирано за пасивни къщи.
Като следващо подобрение на GENEO е на разположение GENEO PHZ (сертифициран за пасивни къщи). Чрез вмъкването на термомодули и на специално средно уплътнение GENEO PHZ изпълнява изискванията за прозорци за пасивни къщи. Всички предимства на GENEO се запазват.Предимства:
- Напълно армирана прозоречна система без допълнителна стоманена армировка
- Изключителна стабилност благодарение на високотехнологичния материал RAU-FIPRO, перфектна профилна конструкция и интегрирана усилваща система (IVS)
- Видима ширина от 115 мм за оптимално пропускане на светлина
- Оптимални пространства за складиране
- По-лесно боравене и монтаж благодарение на до 40% по-ниското тегло спрямо стандартните прозоречни системи
- Голяма дълбочина на фалца от 66 мм, даваща възможност за поставяне на тройно остъкляване
- Намален натиск и осезаемо по-лесно отваряне и затваряне чрез новоразработената геометрия на уплътненията
- HDF-повърхност (High Definition Finishing): висококачествена, изискана, извънредно гладка и лесна за поддръжка
- Екологични, тъй като са рециклируеми
- Перфектна енергийна ефективност – със семейството на GENEO (прозорци, входни врати, повдигащи-плъзгащи врати) осигурявате оптимална изолация на сградата
Технически характеристики:
Конструктивна ширина: 86 мм / средно уплътнение Брой камери: 6 камери Топлоизолация: Uf до 0,79 W/m²K Шумоизолация: без стоманена армировка до Rw,P = 47 dB ( с остъкление Rw = 50 dB) Защита от взлом: до клас на защита 3, до клас на защита 2 без стомана Въздухопропускливост: 4 (EN 12207) Херметичност при проливен дъжд: 9A (EN 12208) Дизайн:
- Много архитектурни възможности посредством индивидуални форми – кръгли, ъглови, дъговидни, с шпроси, които за първи път могат да бъдат реализирани напълно армирани
- Разнообразни възможности за оформление чрез декориращи фолиа, лакиране или алуминиеви капачки
- Поставяне на акценти със светлосиви уплътнения при белите профили и черни уплътнения при цветните профили
- 20°-наклони и 5 мм външни радиуси за елегантна оптика





